The home we are building will be 35 feet in diameter. The square footage of the first floor will be ((35/2)^2)π feet ~= 962. (You knew there would be math, right?) There will be loft space of about half of that for a livable area of 1443 square feet. The front of the house will be facing south with the majority of its windows on this face.
The house will be build using a kit from Smiling Woods Yurts. The design is done by Dream. Design. Build. Here are a few of our design sketches.

South Elevation
By putting the majority of the house’s windows on the south face we will gather heat in the winter and take in the incredible view. The sun shades will help block some of the sun’s heat in the summer. You can just see the spiral staircase heading up to the loft. Main entrance will be through an addition on the east side.

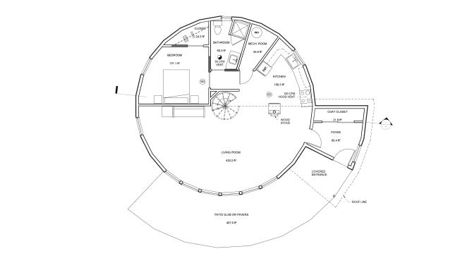
First Floor
The front half of the first floor will be open to the ceiling. In the back half we will tuck a single bedroom, bathroom, utility room and kitchen. The utility room is situated neatly between the bathroom and the kitchen so we can keep our interior plumbing to a minimum. The kitchen will spill over into dining and living areas. Spiral staircase will be at the very center of things, leading up to the loft. The loft will be a nice space, but don’t call it a “sleeping” loft with the building inspector in earshot as there will be no egress windows from up here.

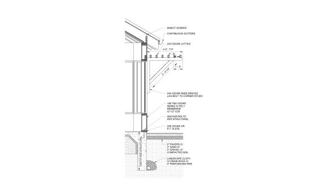
Wall and Foundation Section
This drawing shows a some detail around how the foundation, walls, sunshade and roof will be constructed.
So excited for you all! And Jenny so glad you put this into a blog to follow. I really do think it is going down for real 😉 Big hugs to the Lighthart fam -xoxo
LikeLike
Math?! Just kidding. I love the details. This house design is so perfect for you guys!
LikeLike